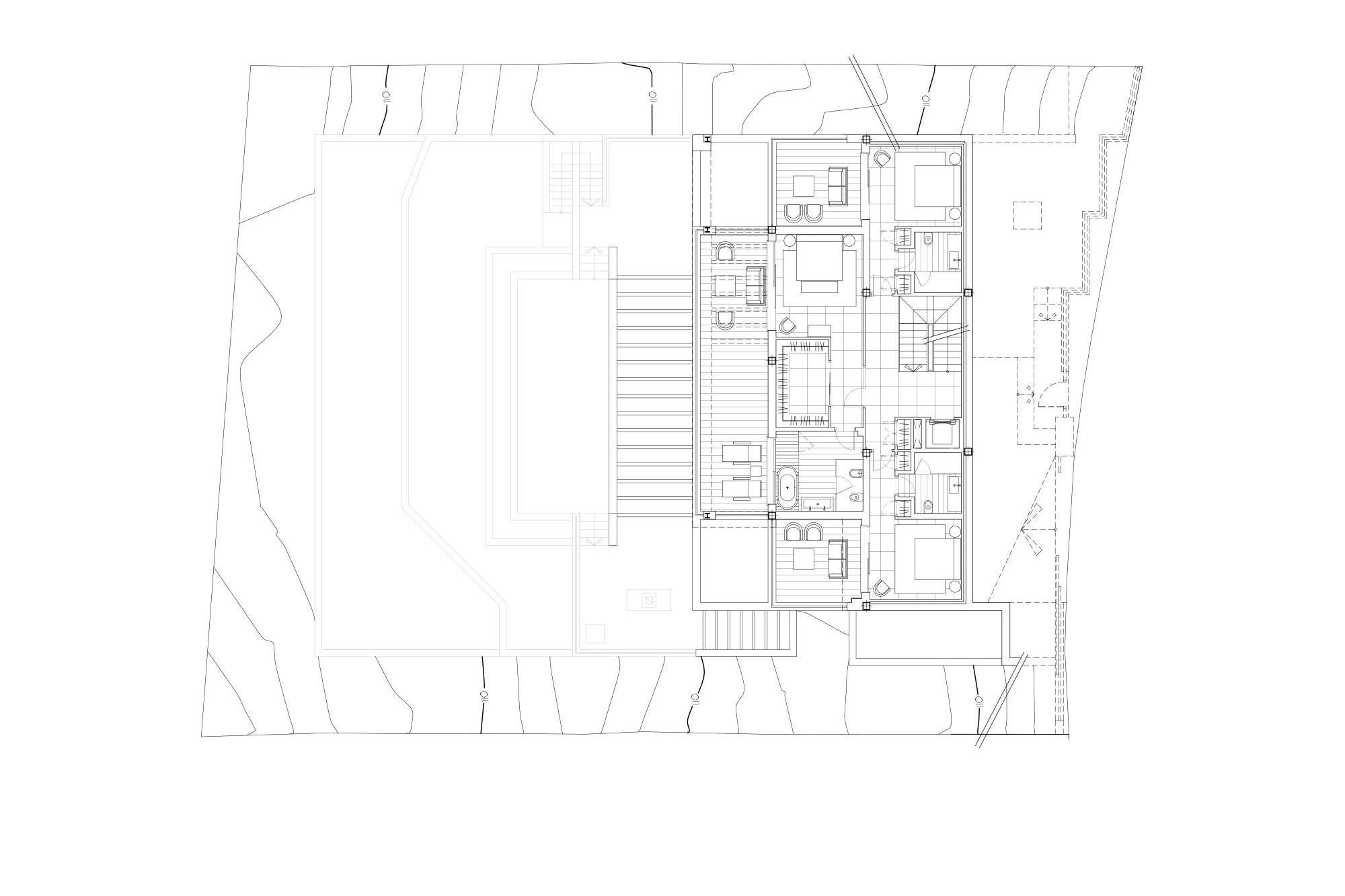
Bedrooms: 4
Bathrooms: 4+1
Plot: 1114 m2
Built: 370 m2
Pool: 45 m2
Terraces: 289 m2
Garage: 2 cars
Orientation: SW
coming soon
All rights reserved // 2023 // Produced by SPCA Marbella